江西玩球通(中国)-变压器低压进线柜常见连接方式
2022-09-07 09:54:53
玩球通(中国)
江西玩球通(中国)-变压器低压进线柜常见连接方式
1、干式变压器相关技术参数确认
1)变压器外壳采用不锈钢外壳;若变压器与低压进线柜相邻布置,外壳IP选用IP30;若变压器与低压进线柜不相邻布置,可选用IP20。注意:IP防护等级越高,其散热性越差,选择时应根据实际项目情况合理确定防火等级。
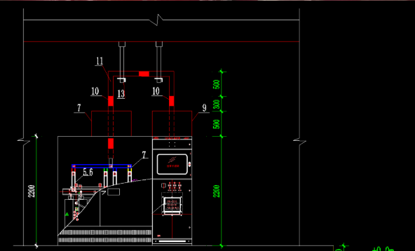
变压器外壳有落地式与非落地式,变压器外壳高度与低压柜高度保持平齐;(下图为变压器外壳非落地式)

2)变压器前后门需加带电闭锁装置,当变压器低压侧带电时,前后门应打不开,失电时,前后门可打开。
3)变压器底座加装防震垫。
4)变压器外壳下部10kV进线带电缆固定支架,并带橡胶防护圈。
5)变压器前后门设安装行程开关SA,变压器室门打开,对应高压馈线分闸回路跳开;变压器室门关闭,对应高压馈线合闸回路解锁;
6)变压器温控器电源常见方式:外置接法和内置接法。
a.当变压器与低压柜相邻布置时,可采用外置接法(即温控器电源开关设置在低压进线柜电源侧,选用空气开关C63A/3P 16A);

b.当变压器与低压柜距离相对远时,可选用内置接法(电源引自变压器本体低压侧(A,N),并在变压器外壳上设置C63A/2P空气开关。)

2、确认变压器高低压(10/0.4kV)进出线方式
1)变压器--低压进线柜采用封闭母线连接(即变压器上出线,低压进线柜上进线);





2)变压器--低压进线柜采用铜排侧出线连接(即变压器侧出线,低压进线柜侧进线);

3)变压器--低压进线柜采用低压电缆连接;

4)变压器--低压进线柜采用低压母线桥;

5)变压器低压侧开关整定及对应相关参数选择
TAG:
江西玩球通(中国),变压器